分享到微信朋友圈
×
灰木色系住宅,干净优雅又大气!
05-13 15:15
35575阅
灰色空间
IRA LYSIUK新作,一个秉承极简主义哲学年轻的设计师,对品质与创新的追求,这套石灰色的住宅是设计师为屋主精心营造的一处精神堡垒,赋予了这个居所更深远的含义,家不只是倦鸟归来的巢,还是安放灵魂、洗涤尘世的纷扰的精神居所。运用简洁质朴的设计语言,营造了一处温暖舒适并且充满诗意的家居空间。
设计师
IRA LYSIUK
简单才是难设计的,复杂才是简单的。一张干净的画布表面是白色平滑,但是它的反面是一个深思熟虑的框架,支撑着结构。我们的项目就像画布,美丽的照片隐藏着艰苦的工作。13年来,我们一直在磨练我们的技能,使每个项目独一无二。我们为特别的人工作,他们努力拥有特别的东西,不像其他人那样,我们的项目时尚现代。
其他佳作
Pastel violet
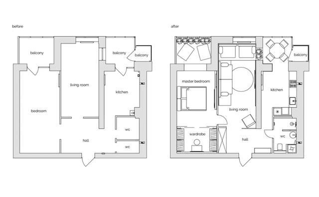
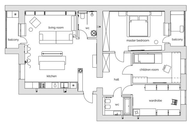
平面图
这套具有中性色的73平方米的公寓,客户没有特别的要求,相信IRA LYSIUK的品味,唯一的要求是在公寓中使用明亮的紫外线。墙壁上的混凝土传达了室内自然的主题,布置了有天然木胶合板和室内植物,用餐区在宽敞的凸窗上,可欣赏到窗外的全景。
Pearl copper
平面图
这间125平方米的公寓,明亮的内部装饰与黑色相平衡,浴室的墙壁上覆盖着微混凝土,这是一种超耐久的涂层,不怕水,它的主要优点是无缝性。地板上的黑白几何装饰是混凝土和大理石瓷砖的组合,具有特殊的魅力和活力。开放式梳妆台和阳台上的柔软区域是这间公寓内部的亮点。
关键词:
30
大家都在说【0】
发表
评论
评论
相关资讯
广告